Paolo Coretti
Restauro della Chiesa Parrocchiale di S. Giorgio Maggiore a Udine, in Borgo di Grazzano
Di:
Paolo Coretti
(Responsabile)
Anno:
2001
Categoria:
Progetti realizzati
Tipologia:
Restauro e ristrutturazioni
Committente:
Parrocchia di San Giorgio Maggiore a Udine
Indirizzo:
Borgo di Grazzano - Udine
Località:
Udine (UD)
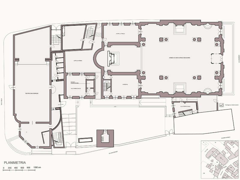
Consolidamento della navata e del presbiterio, sistemazione delle strutture di copertura e della volta lignea intonacata e decorata, installazione dell’impianto di riscaldamento del tipo radiante, rifacimento della pavimentazione in terrazzo (seminato alla veneziana), messa in luce dei marmorini sulle superfici verticali e voltate e revisione generale degli apparati decorativi; opere complementari in mosaico e in legno e adeguamento liturgico del presbiterio in alabastro bianco di Volterra.
Professionista
Progetto

